
In Montleban, een charmant dorpje in de gemeente Gouvy, verwelkomt deze verrukkelijke villa met 4 gevels, opgetrokken in traditionele Ardense steen, u in een rustige en groene omgeving.
De woning staat in een rustige straat, op een uitgestrekt perceel van 34 are en omgeven door velden, en biedt een serene woonomgeving, omringd door de natuur.
Het huis, gebouwd in 2025 en nog steeds onbewoond, is ontworpen met bijzondere aandacht voor comfort en energie-efficiëntie: zonnepanelen, warmtepomp, omkeerbare airconditioning, hoogwaardige isolatie, regenwatertank... alles is ontworpen om de energie-impact te beperken en de bewoners een aangenaam dagelijks leven te garanderen.
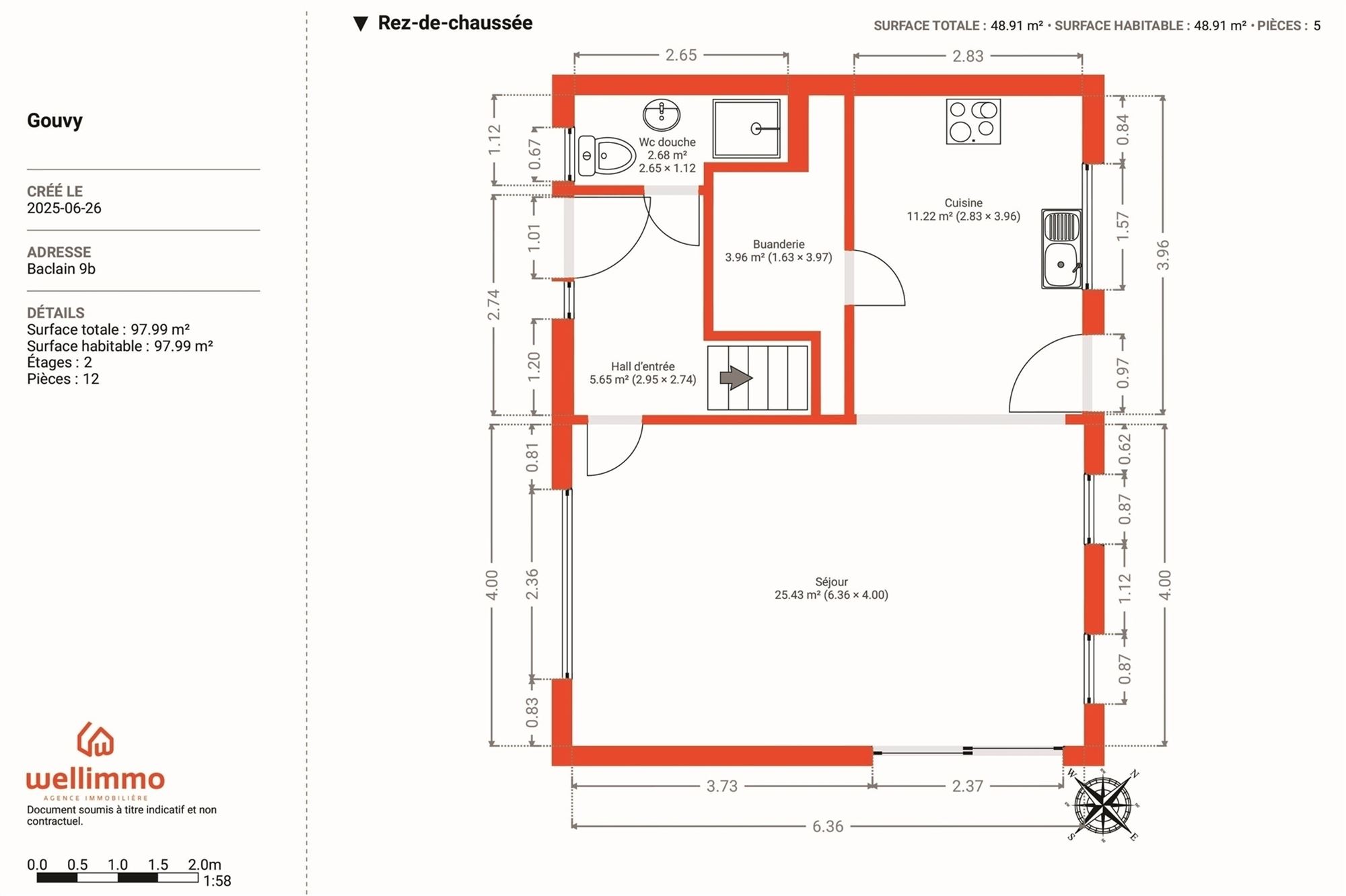
De gelijkvloerse verdieping biedt een ruime en lichte woonkamer met grote openingen naar de tuin, een gezellige open keuken, een praktische wasruimte en een doucheruimte met WC.
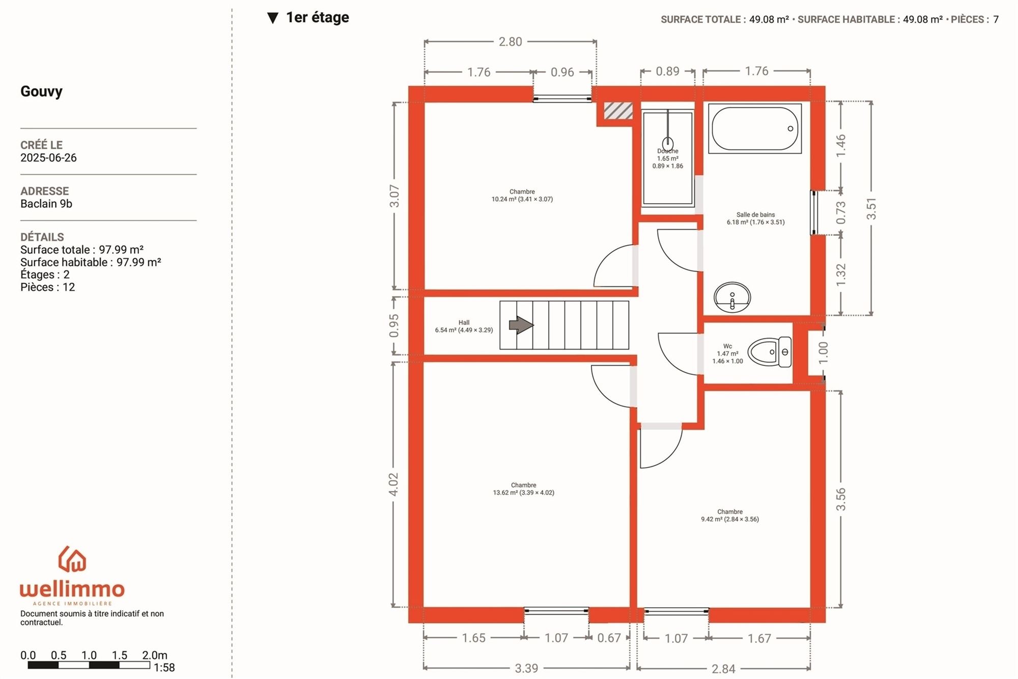
Boven leidt de nachthal naar drie slaapkamers en een moderne badkamer met een ligbad, een inloopdouche en een wastafelmeubel. Een afzonderlijke WC completeert deze verdieping.
Maar naast de technische prestaties en functionaliteit is het vooral een kwaliteitsvolle woonomgeving. De grote tuin is gericht op rust en met veel mogelijkheden. Geef de vrije loop aan uw wensen voor de aanleg van de tuin. De bouwvergunning voorziet tevens in de bouw van een carport aan de woning, en aansluitingen voor een toekomstig tuinhuis zijn ook voorzien, waardoor u alle flexibiliteit heeft om uw projecten te realiseren.
Of u nu op zoek bent naar een woning om het hele jaar door in te wonen of een oase van rust om even op adem te komen, deze villa heeft alles wat u nodig heeft.
Een bezoek is een must om dit eigendom te ontdekken, dat comfort, rust en natuur combineert.
GLV: een inkomhal, badkamer (met douche, wastafel en WC), woonkamer met open keuken (bemeubeld, voorzien van afzuigkap, elektrische kookplaat en spoelbak; overige elektrische apparatuur dient te worden voorzien), wasruimte.
GLV + 1: Nachthal met toegang tot 3 slaapkamers (10,24 m², 13,62 m² en 9,42 m²), afzonderlijke WC en badkamer (met inloopdouche, ligbad en wastafel).
INFO + :
- Nieuwbouw van 2025, 4 gevels in lokale steen, nooit bewoond;
- Op een perceel van 34 are, oost/zuidoost georiënteerd;
- Aangename ligging, in een rustige straat, op twee stappen van het Natuurpark van de Twee Ourthes;
- Grote openingen naar de tuin, lichtvolle en goed uitgedachte kamers;
- Er is bijzondere aandacht besteed aan de isolatie en energie-efficiëntie, resulterend in een EPC: A-label!
- PVC- ramen met driedubbel glas;
- 10 zonnepanelen (installatie van 4.750 kW - piekvermogen 4.123 kWp);
- Verwarming via een lucht-lucht warmtepomp (omkeerbare warm/koud);
- Sanitair warm water via een elektrische boiler van 200 liter;
- Mechanische ventilatie en warme/koude airconditioning in de woonkamer en elke slaapkamer;
- Micro-waterzuiveringsinstallatie ontworpen voor 6 personen;
- Regenwatertank met een totale inhoud van 7.500 liter (aangesloten op de toiletten);
- Conforme elektriciteit, certificaat geldig tot 2049;
- Verkoop onder het stelsel van de btw;
- “CertIBEau” conform;
- Er is reeds een vergunning verleend voor de bouw van een carport (2 auto's) en een tuinhuisje (water- en elektriciteitsaansluitingen zijn reeds geregeld);
Adres :
Baclain 9B - 6674 MONTLEBAN
Referentie | 2267 |
---|---|
Gemeubeld | Nee |
Aantal kamers | 3 |
Aantal badkamers | 2 |
Tuin | Ja |
Tuinoppervlakte | 3400 m² |
Garage | Nee |
Terras | Nee |
Parking | Ja |
Bewoonbare oppervlakte | 98 m² |
Oppervlakte van het perceel | 3400 m² |
Algemene staat | Nieuwbouw |
---|---|
Slaapkamers | 3 |
Badkamers | 2 |
Toiletten | 2 |
Keuken | Gedeeltelijk geïnstalleerd |
Kader | PVC |
Beglazing | Driedubbel glas |
Vermarming (type) | Pompe à chaleur |
Verwarming | Individueel |
Verdieping | 1 |
Elektriciteit | Ja |
---|---|
Water | Ja |
Oriëntatie | Oost |
---|
Dak | Schuin dak |
---|---|
Dak (materiaal) | Natuurleisteen |
Bouwjaar | 2025 |
Gevels | Open |
Energieverbruik (Kwh/m²/j) | 47 Kwh/m²/j |
---|---|
Totaal energieverbruik (Kwh/j) | 5393 |
EPC-Label | A |
Vervaldatum energiecertificaat | 01-06-2035 |
Unieke code | 20250601500281 |